
Hizmetlerimiz
Tescilli Yapı Rölöve, Restitüsyon ve Restorasyon Projeleri
TARİHİ MİRASI GELECEĞE TAŞIMA: RÖLÖVE, RESTİTÜSYON VE RESTORASYON PROJELERİ
MRC Mimarlık ve Restorasyon olarak, tescilli kültür varlıklarının korunması, belgelenmesi ve yeniden işlevlendirilmesi misyonunu üstleniyoruz. Kurucumuz Mimar Muhammet Raşit Çiftci'nin restorasyon proje uzmanlığı ile, projelerimizi en güncel teknolojiler ve bilimsel koruma ilkelerine uygun olarak hazırlıyoruz.
TEKNİK METODOLOJİ VE ÜSTÜN HASSASİYET
Proje üretim süreçlerimiz, yapının mevcut durumunu hatasız kaydetmeyi ve kayıp mimari kimliğini bilimsel referanslarla yeniden canlandırmayı esas alır:
-
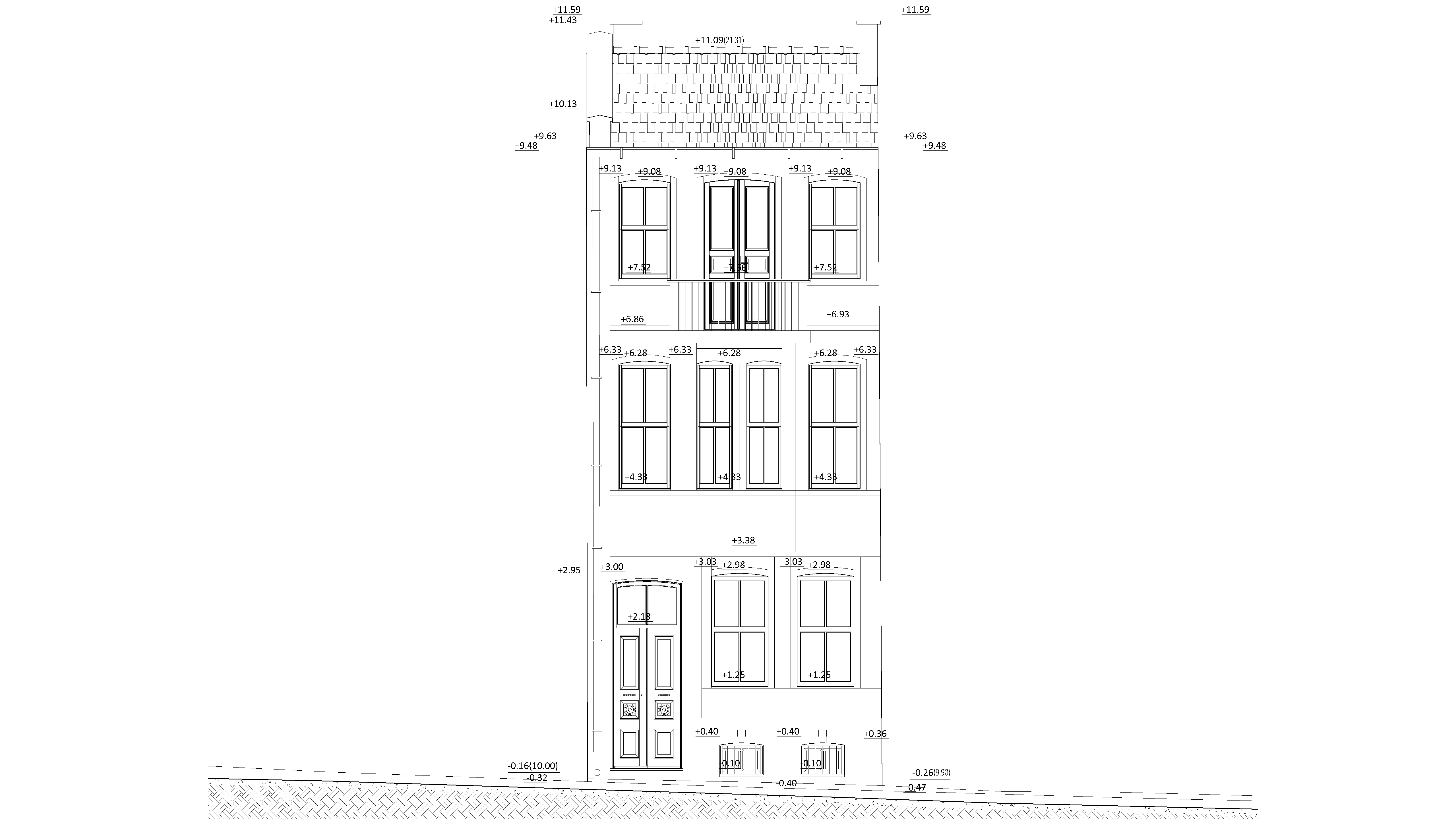
Lazer Tarama Destekli Rölöve: Yapının mevcut geometrisi ve deformasyonları, milimetrik hassasiyet sağlayan 3 boyutlu Lazer Tarama teknolojisi ile belgelenir. Bu yöntem, karmaşık cephe ve strüktüre sahip yapılarda hatasız veri tabanı oluşturur.
-
Araştırma ve Arşiv Kaynaklı Restitüsyon: Derinlemesine arşiv ve yerinde araştırma çalışmaları ile yapının orijinal dönemi ve ilk mimari formu kaynaklara dayalı olarak tespit edilir. Bu çalışma, restorasyonun aslına sadık kalmasını sağlayan temel referanstır.
-
Kalıntı Rölövesi Uzmanlığı: Arkeolojik potansiyel taşıyan parsellerde, kazı sonucu ortaya çıkan moloz taş duvar ve temel kalıntıları uzman ekibimizce titizlikle belgelenerek, kalıntı rölövesi raporu haline getirilir.
RESTORASYON VE YASAL UYUM
Hazırladığımız Restorasyon Projeleri, tarihi kimliği koruma altına alırken, yapısal güvenliği de sağlar:
-
Koruma Kurulu Onay Süreçleri: Projelerimizin yasal uygunluğu, ilgili Kültür Varlıklarını Koruma Bölge Kurulları (Örn: İstanbul 2 ve 4 Numaralı KVKK) tarafından onaylanarak sağlanır.
-
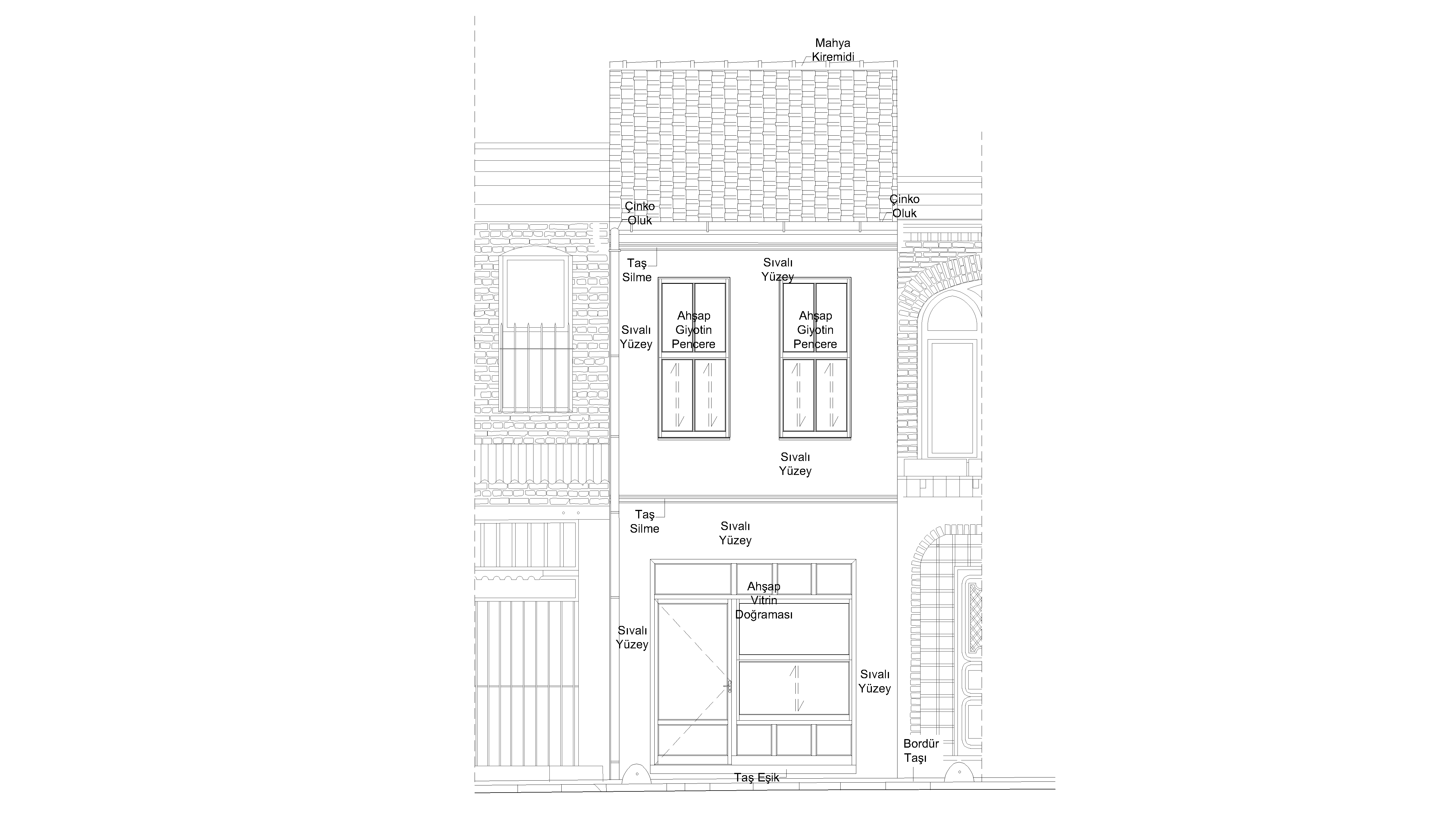
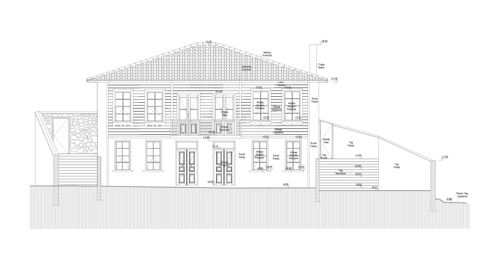
Özgün Detayların İhyası: Yapının cephe mimarisi, kapı/pencere doğramaları, süslemeler ve özgün strüktürleri, Kurul ilkeleri doğrultusunda korunur veya özgün malzeme ile aslına uygun olarak yeniden üretilir.
-
Strüktürel Güçlendirme Entegrasyonu: Tarihi dokuya en az müdahale ilkesiyle, yapının güncel deprem ve güvenlik yönetmeliklerine uyumunu sağlayacak yapısal güçlendirme detayları projelendirilir.
Tescilli yapılarınızın koruma ve yenileme süreçleri için MRC Mimarlık ve Restorasyon uzmanlığına güvenin.
Projenizin türüne özel bir ön değerlendirme yapmamızı ister misiniz?
