Uzmanlık Alanlarımız
Restorasyon projelerindeki derin tecrübemizi, konut, ofis ve kamusal alan tasarımlarındaki yenilikçi vizyonumuzla birleştirerek mimarlığın her alanında bütünsel çözümler sunuyoruz.
Yüksek Kaliteli Kentsel Dönüşüm Projeleri
Kentsel dönüşümde kaliteyi önceliklendiriyoruz: Yasal süreç yönetimi, kapsamlı sözleşmeler ve birebir 3D görsellerle güvence altına alınmış yüksek standartlı yeni konut projeleri.
Yapısal Güçlendirme Çözümleri: Depreme Dayanıklı Strüktürel Yenileme
Mimar Muhammet Raşit Çiftci liderliğinde, tarihi ve riskli modern yapıların güncel deprem yönetmeliğine uygun yapısal güçlendirilmesi ve strüktürel yenileme hizmetleri.
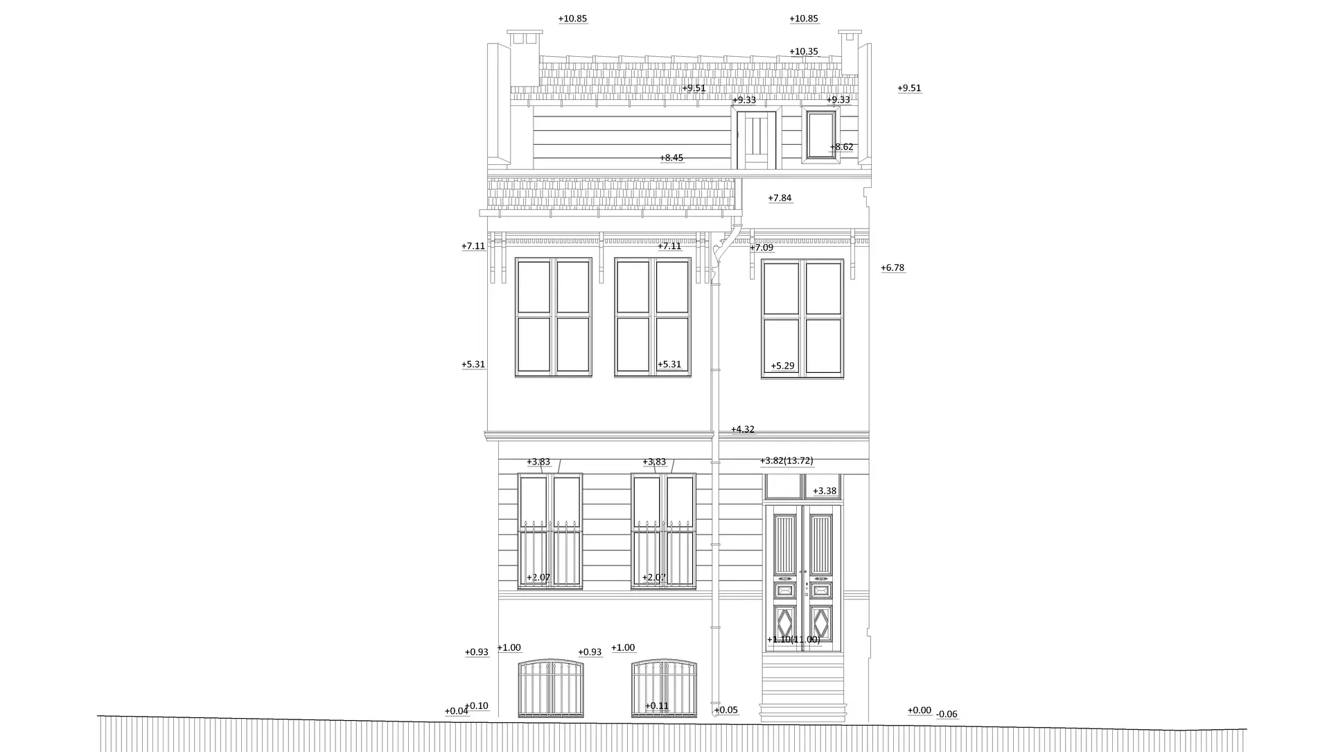
Tescilli Yapı Rölöve, Restitüsyon ve Restorasyon Projeleri
Mimar Muhammet Raşit Çiftci liderliğinde Lazer Tarama destekli milimetrik rölöve, arşiv kaynaklı restitüsyon ve Kurul onaylı restorasyon projeleri hazırlama hizmetleri.
Modern Renovasyon ve Lüks İç Mimari Çözümleri
Yaşam alanlarınızı Mimar Muhammet Raşit Çiftci liderliğinde dönüştürün. Anahtar teslim modern konut renovasyonu, iç mimari projelendirme ve yüksek standartlı uygulama hizmetleri.
PORTFÖYÜMÜZDEN SEÇMELER
Yaşayan Eserler
Her projemiz, geçmişin saygıdeğer mirasını geleceğin vizyonuyla buluşturan eşsiz bir hikaye anlatır.
Nasıl Çalışıyoruz?
Fikirden Gerçeğe, Şeffaf ve Disiplinli Yaklaşımımız
Projenizin her aşamasında sizi bilgilendirir, bütçe ve takvime sadık kalarak hayallerinizi hassasiyetle inşa ederiz.
1. Keşif & Görüşme
Vizyonunuzu anlamak ve ihtiyaçlarınızı belirlemek için bir araya geliyoruz.
2. Tasarım & Projelendirme
Fikirlerinizi, detaylı mimari ve mühendislik planlarına dönüştürüyoruz.
3. Uygulama & Restorasyon
Uzman ekibimizle, projeyi en yüksek kalite standartlarında hayata geçiriyoruz.
4. Teslim & Destek
Hayalinizdeki mekanı size teslim ediyor ve proje sonrası desteğimizi sunuyoruz.
Yazılarımız
Bilgi Merkezi & Sektörel İçgörüler
Mimari trendler, restorasyon teknikleri ve proje yönetimi üzerine hazırladığımız güncel yazılarımıza göz atın.
Hayalinizdeki Projeyi Birlikte Tasarlayalım.
İster tarihi bir yapıyı canlandırmak, ister sıfırdan modern bir mekan yaratmak olsun, vizyonunuzu dinlemeye ve tecrübemizle hayata geçirmeye hazırız.
Ya da bizi arayın: 0532 015 34 97



