Beyoğlu Talimhane Erken Cumhuriyet Dönemi Yapısı Projelendirme
Projenin Hikayesi
518 ADA 10 PARSEL TARİHİ YAPI KAPSAMLI RESTORASYON RAPORU
Konum: Beyoğlu, Talimhane Bölgesi, İstanbul
Yapı Statüsü: Tescilli Tarihi Yapı (İstanbul 2 Numaralı KVKK Onaylı)
İnşa Dönemi: Erken Cumhuriyet Dönemi 1920-1930
Proje Yürütücüsü: MRC Mimarlık ve Restorasyon (Mimar Muhammet Raşit Çiftci)
Beyoğlu'nun tarihi ve mimari açıdan önemli Talimhane Bölgesi'nde yer alan 518 Ada 10 Parsel'deki tescilli sivil mimarlık yapısı için kapsamlı Rölöve, Restitüsyon ve Restorasyon Projeleri başarıyla tamamlanmıştır.
Erken Cumhuriyet Dönemi betonarme yapılarının ilk örneklerinden biri olan bu yapının geleceğe güvenle aktarılması misyonuyla yürütülen projeler, Lazer Tarama destekli yüksek hassasiyetle hazırlanmıştır. Temel hedef, yapının özgün cephe mimarisini ve dönemsel detaylarını koruyarak, Strüktürel Güçlendirme ile yapısal bütünlüğünü sağlamaktır.
METODOLOJİ: DİJİTAL HASSASİYET VE ÖZGÜN STRÜKTÜR ANALİZİ
Bu projenin temelinde, yapının modern strüktürel karakteristiği ile tarihi cephe süslemelerinin eş zamanlı belgelenmesi yatmaktadır:
Yüksek Çözünürlüklü Lazer Tarama Rölövesi: Yapının karmaşık cephe elemanları ve mevcut geometrisi, Lazer Tarama teknolojisi ile milimetrik hassasiyetle kaydedilmiştir (Bkz: Lazer Tarama Rölöve Görseli). Bu dijital veri, restorasyon projelerinin hatasız temelini oluşturmuştur.
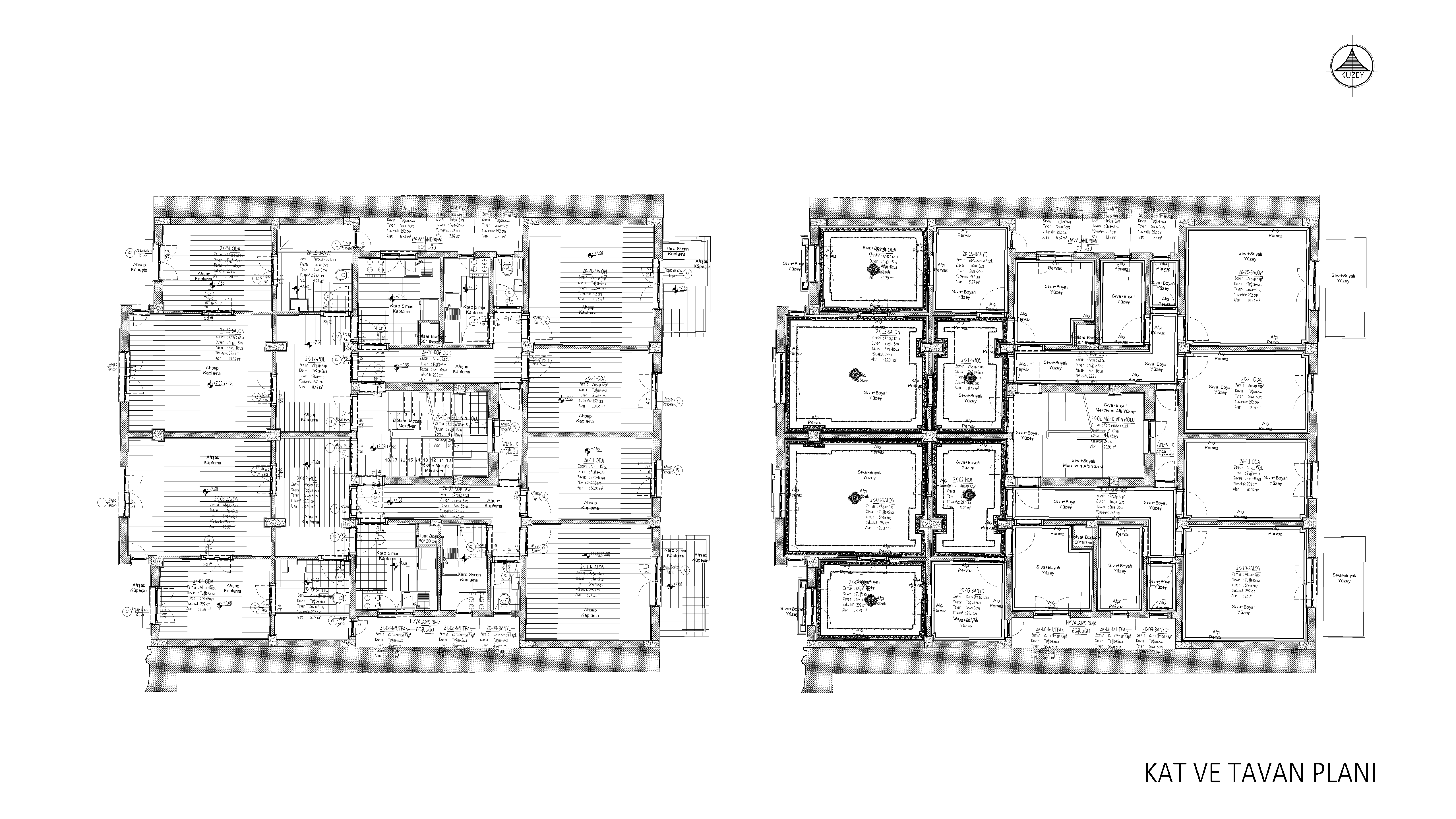
Detaylı Proje Üretimi: Yapının kat ve tavan planları (Bkz: Planlar Proje Görseli) ile tüm dış cephe elemanları, kat silmeleri ve balkonlar, titizlikle projelendirilmiştir.
CEPHE İHYASI VE DETAY KORUMASI
Restorasyon yaklaşımımız, yapının dönemsel karakterini yansıtan süsleme unsurlarını ve ana giriş kurgusunu korumayı önceliklendirmiştir:
Özgün Cephe Restorasyon Çözümü: Hazırlanan restorasyon cephe projesi (Bkz: Cephe Proje Çizimi), zemin kat ticari birimlerinin düzenlemesini, ana girişin dönemsel ihtişamını ve üst katlardaki pencere-balkon dengesini koruyarak yapılmıştır.
Mimari Süslemeler: Yapının tescilli kapı ve pencere çevresi süslemeleri, Restorasyon Detay Çizimleri ile belgelenmiş ve aslına uygun malzeme ile yeniden üretimi/konservasyonu hedeflenmiştir.
Arka Cephe Düzenlemesi: Yapının arka cephesi, modern yapı standartlarına uyum sağlayacak şekilde, özgün açılımları koruyarak projelendirilmiştir.
YASAL UYUM VE ONAYLAR
Hazırlanan tüm projelerimiz, yapının kültürel değerini ve strüktürel özelliklerini dikkate alarak İstanbul 2 Numaralı Kültür Varlıklarını Koruma Bölge Kurulu tarafından onaylanmıştır. Ruhsat süreçleri ise Beyoğlu Belediyesi ile koordineli bir şekilde yönetilmiştir.
Bu proje, MRC Mimarlık ve Restorasyon olarak, modern mimari mirasın korunması ve işlevselleştirilmesi alanındaki uzmanlığımızı göstermektedir.
