Karaburun Tescilli Yapı Rölöve ve Restorasyon Projesi
Projenin Hikayesi
ARNAVUTKÖY KARABURUN TARİHİ YAPI PROJELENDİRME VE RUHSAT SÜRECİ
Konum: Arnavutköy Karaburun 0 Ada 288-289 Parsel
Yapı Statüsü: Tescilli Tarihi Yapı (1 Numaralı KVKK Onaylı)
İlgili Kurumlar: Arnavutköy Belediyesi ve 1 Numaralı Kültür Varlıklarını Koruma Kurulu
Yapısal Sistem: Yığma Taş/Tuğla Duvarlar ve Ahşap Çatı/Döşeme Sistemi
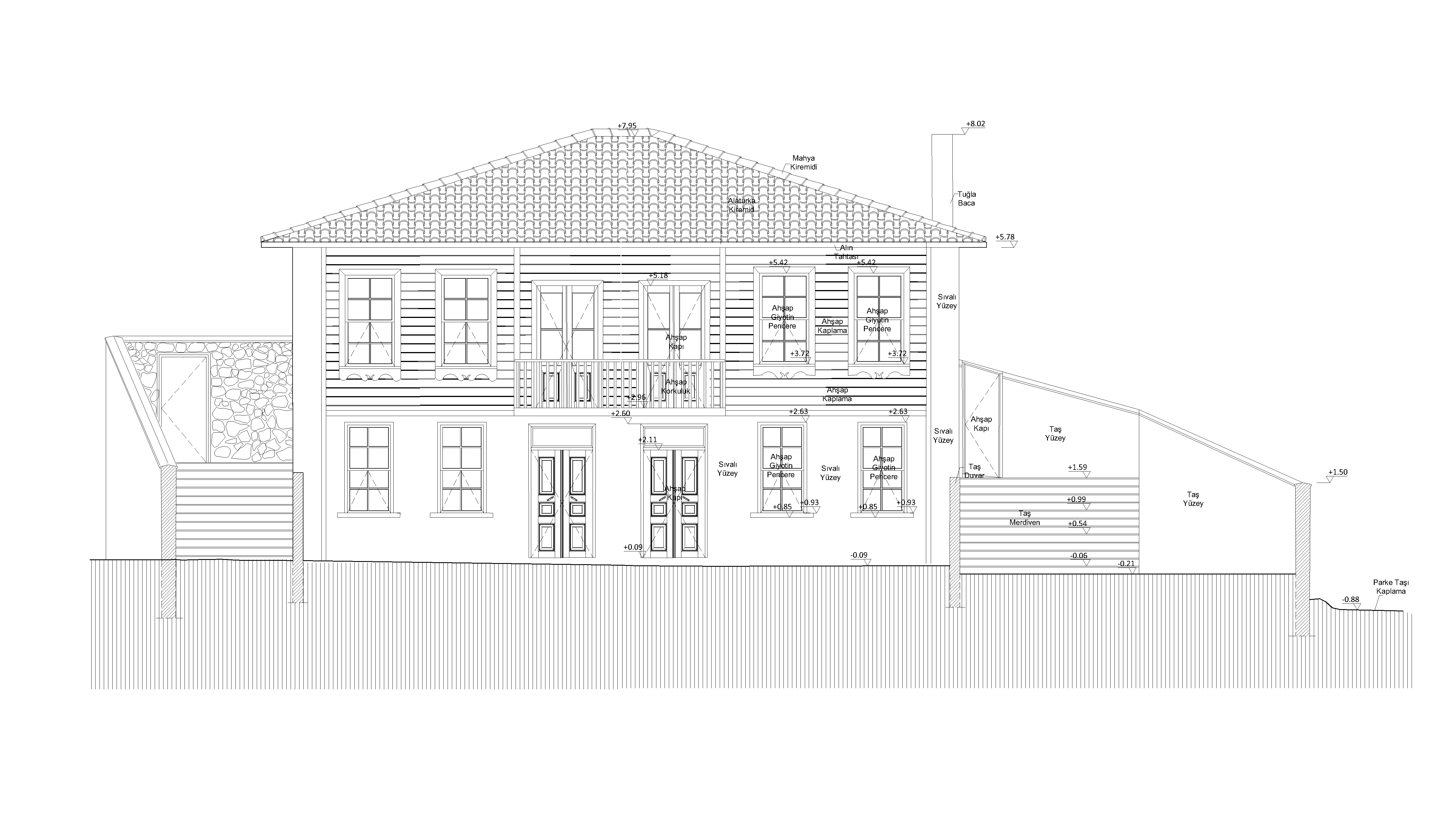
İstanbul Arnavutköy, Karaburun Mahallesi sınırları içerisinde, Tahlisiye Feneri civarında yer alan bu tescilli yapının restorasyon projesi, İstanbul 1 Numaralı Kültür Varlıklarını Koruma Kurulu tarafından onaylanmıştır. Yöresel mimari özellikler taşıyan bu yapının projelendirme aşaması başarıyla tamamlanmış olup, restorasyon ruhsatı alınması için Arnavutköy Belediyesi nezdinde yasal süreçler devam etmektedir.
BİLİMSEL BELGELEME VE KURUL ONAYI
Projemizin temelini oluşturan bilimsel çalışmalar, Koruma Kurulu standartlarına uygun olarak en üst düzey hassasiyetle tamamlanmıştır:
Tamamlanan Proje Aşamaları
Yapının metruk ve aşırı hasarlı mevcut durumu, son teknoloji lazer tarama ile hassas bir şekilde belgelenmiştir. Bu veriler ışığında hazırlanan;
RÖLÖVE: Mevcut durumun milimetrik belgelenmesi.
RESTİTÜSYON: Yapının tarihsel özgünlüğünün tespiti.
RESTORASYON: Yapısal güçlendirme ve aslına uygun müdahale detaylarını içeren projeler.
Kurul'a sunulmuş ve onaylanmıştır.
YASAL SÜREÇLER VE RUHSAT AŞAMASI
Koruma Kurulu Onayı alınarak büyük bir adım atılan projemizin, uygulamaya geçişi için son yasal süreç olan ruhsatlandırma işlemleri yürütülmektedir.
Belediye Ruhsat Süreci Devam Ediyor
Kurul onayını takiben, projemizin uygulama ruhsatı için Arnavutköy Belediyesi nezdindeki mimarlık ve mühendislik birimleri ile koordinasyon sağlanmaktadır. Ruhsatın kısa sürede temin edilmesi hedeflenmektedir.
YAPISAL KARAKTER VE MÜDAHALE GEREKLİLİĞİ
Yapı, tarihi Karaburun yerleşiminin tipik özelliklerini taşımakta olup, Karadeniz kıyısının zorlu şartlarına maruz kalmıştır:
Koruma Kurulu Onaylı Müdahale
Yapının iç mekânlarında ve taşıyıcı sisteminde tespit edilen ciddi yıpranma ve yapısal bozulmalara yönelik hazırlanan güçlendirme ve onarım detayları Kurul tarafından onaylanmıştır. Projemiz, taşıyıcı sistemin güçlendirilmesi ve tarihi değerinin korunması hedeflerine odaklanmaktadır.
288-289 Parsel Projesi, tarihi yapı koruma alanındaki yetkinliğimizi kanıtlayan, tüm Kurul onayları alınmış ve ruhsatlandırma aşaması devam eden önemli bir referanstır.
