Balat 1818 Ada/20 Parsel: Tescilli Sivil Yapı Projelendirme
Projenin Hikayesi
Balat 1818 Ada 20 Parsel Tescilli Yapı Kapsamlı Restorasyon Raporu
Konum: Balat, Toptancı Sokak, Fatih, İstanbul
Yapı Statüsü: 2. Derece Tescilli Sivil Mimari Yapı (KVKK Onaylı)
İnşa Dönemi: Yaklaşık 1920
Bu proje, İstanbul'un tarihi mirasının simgelerinden Balat'ta yer alan 1818 Ada, 20 Parsel numaralı 2. Derece Tescilli Sivil Mimari Yapı için gerçekleştirilen kapsamlı restorasyon çalışmasını detaylandırmaktadır. Projemiz, yapının özgün değerini koruma ve çağdaş tekniklerle strüktürel bütünlüğünü garanti altına alma misyonuyla hayata geçirilmiştir.
Bilimsel Projelendirme ve Yasal Uyum Süreci
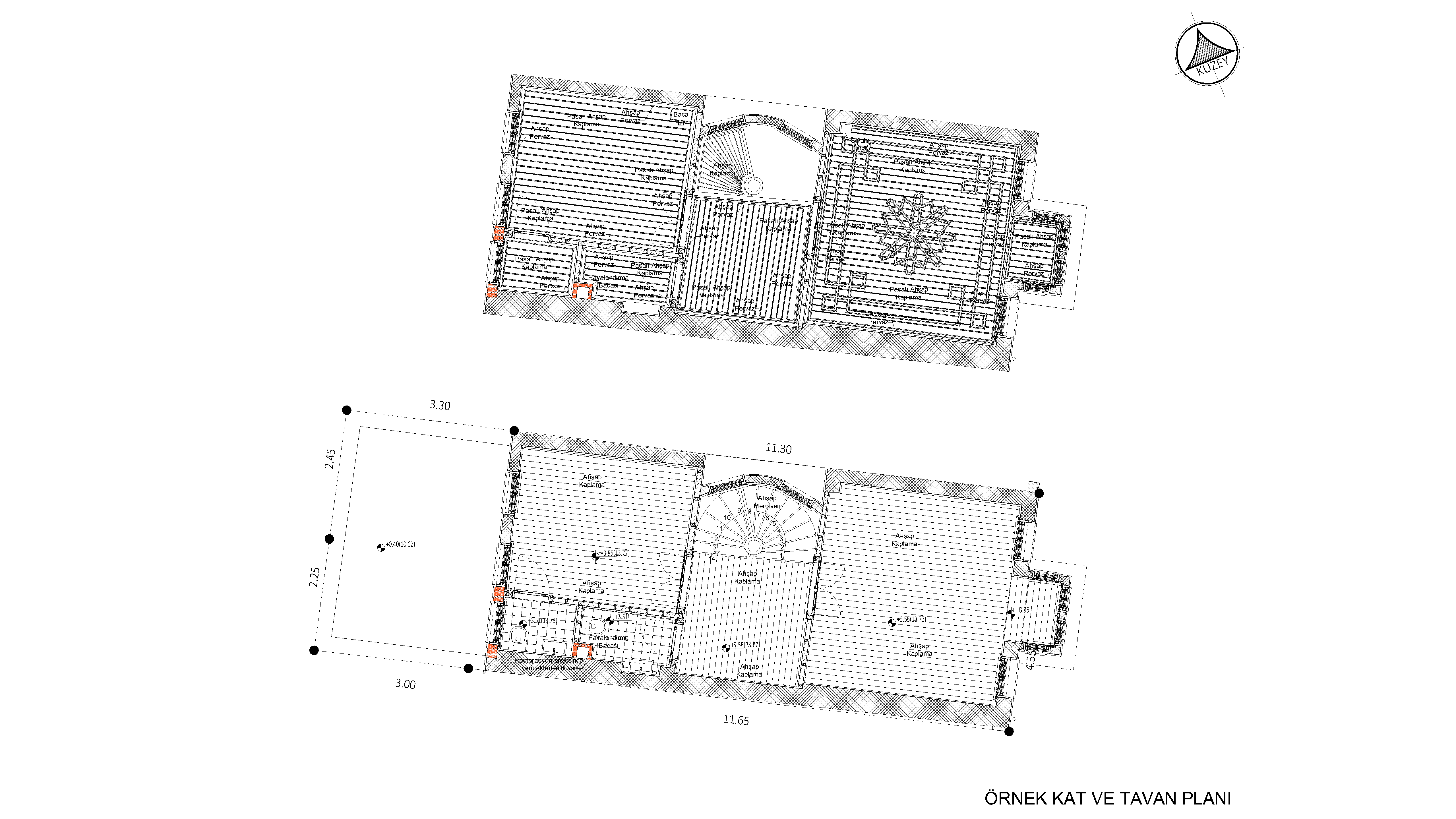
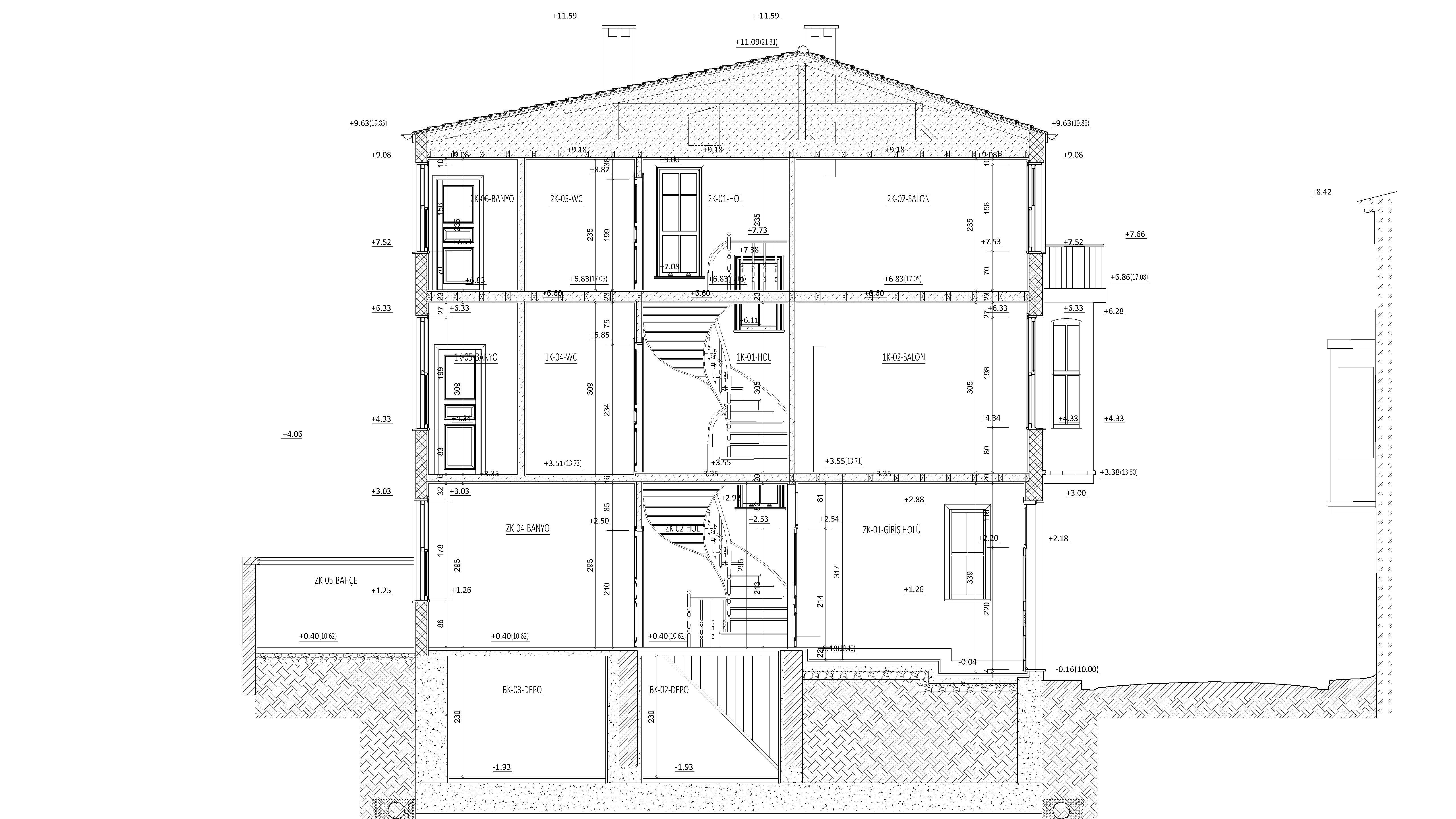
Uygulama aşamasına geçmeden önce, projenin yasal ve bilimsel temelleri titizlikle hazırlanmıştır. Yapının mevcut durumu (Rölöve) ve deformasyonları, geleneksel yöntemlerin ötesinde yüksek hassasiyetli Lazer Tarama teknolojisi kullanılarak tespit edilmiştir. Bu veri setleri ışığında, yapının özgün durumunu ortaya koyan Restitüsyon ve detaylı müdahaleleri içeren Restorasyon projeleri hazırlanmıştır.
Hazırlanan tüm bu projeler, yasal mevzuata tam uyum gözetilerek 4 Numaralı Kültür Varlıklarını Koruma Kurulu onayına sunulmuş ve gerekli izinler eksiksiz biçimde alınmıştır. Kurul onayını takiben, uygulama sürecini başlatmak üzere Fatih Belediyesi'nden Restorasyon Ruhsatı temin edilmiştir. Bu süreç yönetimi, firmamızın yasal mevzuata uyum ve kurumsal yetkinliğini yansıtmaktadır.
Teknik Uygulama ve Yapısal İyileştirme
Ruhsatlandırma sürecinin tamamlanmasının ardından, onaylı projelere uygun olarak saha uygulamalarına geçilmiştir. Yapının tarihi karakterine aykırı, sonradan eklenmiş olan niteliksiz ekler tamamen kaldırılarak yapının özgün formu geri kazanılmıştır.
Teknik müdahalelerin merkezinde, yapının uzun ömürlülüğünü sağlayacak taşıyıcı sistem onarımı yer almıştır. Yaklaşık 1920'den kalma yığma tuğla duvarlardaki hasarlar giderilmiş, yıpranmış ahşap döşeme ve karkas bileşenler güçlendirilmiş veya aslına uygun malzemelerle yenilenmiştir. Bu uygulama, yapının strüktürel güvenliğini artırırken, Balat sivil mimarisinin özgünlüğünü koruma altına almıştır.
Sonuç ve Kurumsal Değer Katkısı
1818 Ada 20 Parsel Restorasyon Projesi, firmamızın tescilli yapı restorasyonu ve kompleks yasal süreç yönetimindeki uzmanlığını gösteren önemli bir referansımızdır. Bilimsel belgeleme, yasal uyumluluk ve yüksek kaliteli uygulama standartları ile tamamlanan bu çalışma, İstanbul'un kültürel mirasının korunmasına yönelik taahhüdümüzü pekiştirmektedir.
